COOL ROOF SYSTEM สีสะท้อนความร้อน

หลังคาเย็น คือ หลังคาที่สามารถส่งค่าการสะท้อนพลังงานแสงอาทิตย์สูงรวมทั้งความร้อนสูง emittance . ระบบหลังคาเย็นให้พลังงานสีเขียวและโซลูชั่นที่มีประสิทธิภาพเพื่อป้องกันการรั่วซึมหลังคาฉนวนกันความร้อนของคุณและความต้องการ โฟมสเปรย์ pu-130 ใช้เพื่อลดความร้อนและการถ่ายโอนความร้อน,กั้นแอร์ คุณสมบัติช่วยลดความร้อนโดยการโอน
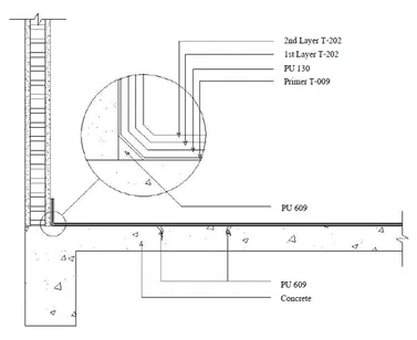
Application Pentens T-202
Primer : Pentens T-009
1st Layer. : PU 130
2nd Layer : Pentens T-202
3rd Layer : Pentens T-202


Pentens T-202 Advantages :
• สีสะท้อนความร้อน สะท้อนความร้อนสูง 90%
•มีส่วนประกอบของอนุภาคเซรามิคนาโน ยึดเกาะพื้นผิวได้ดี
•ยืดอายุของวัสดุมุงหลังคา ช่วยลดอุณภูมิภายในอาคาร
•ทำให้เครื่องปรับอากาศทำงานน้อยลงแหละประหยัดพลังงานไฟฟ้า
•ช่วยลดเสียงรบกวนจากภายนอก เช่นเสียงฝน
